耐震・省エネ性能向上、共用部・専有部のバリューアップにより、サスティナビリティを実現「Life up BASE」をコンセプトに、街を味わう、アクティブな生活拠点を提案
「区分所有オフィス(R)」を主軸に資産形成コンサルティングを行う株式会社ボルテックス(東京都千代田区 代表取締役社長 兼 CEO 宮沢 文彦、以下ボルテックス)は、不動産ストックの流通・利活用を推進するリノベーションプラットフォーム運営のリノベる株式会社(本社:東京都港区、代表取締役:山下 智弘、以下 リノべる)との協業で、ボルテックス初のリノベーション賃貸レジデンス「VORT 深沢 residence」(以下「本プロジェクト」)を竣工、3月下旬より入居を開始いたします。
本プロジェクトはボルテックスが事業主、リノベるが企画・設計・施工を担当し、築48年旧耐震の遊休不動産を一棟リノベーションしたものです。耐震性能、省エネ性能を向上、リノベるのデザイン提案力・マーケティング力を活かした共用部・専有部のバリューアップ・リノベーションにより収益化、物理的・機能的・経済的に長寿命化を図りました。「Life up BASE‐街を味わう、アクティブな生活拠点‐」をコンセプトに、この場所に暮らす魅力を最大化する商品企画で、新築・築浅相当の賃料を実現しています。
リノベーションは、建て替え新築に比べて、投資額を抑えながら、CO²排出量・廃棄物排出量を削減し(※1)、建築物の省エネ化も可能なサステイナブルな手法です。ボルテックスとリノベるは、今後も多様なアセットの活用・収益化を推進し、「資産が健全に循環する社会の実現」、サスティナビリティの実現を目指します。

ビフォー:外観

アフター:外観
■プロジェクトの背景
昨今、建築費が高騰し、建替・新築前提の再開発プロジェクトの中止や見直しが相次いでいます。不動産ストックの充足と建築費の構造的な高騰を踏まえ、2023年9月、ボルテックスは、さまざまなアセットタイプの不動産をリノベーション/コンバージョンして活用(もしくはバリューアップ利用)する際に事業シナジーを得られることなどを想定し、リノベると資本業務提携を締結しました。本プロジェクトは協業第一弾として、2023年に事業化検証からスタートしました。従前の「ストークマンション深沢」は、1975年に建てられた旧耐震基準・無断熱の建物で、室内の老朽化も激しく、賃貸マンションとしての役目を終え、遊休化していました。ボルテックスは、2023年5月に本物件を取得、事業化検証にあたっては、建替も視野に入れて検討しましたが、環境負荷抑制の観点や工事費の高騰を踏まえ、サスティナビリティを追求する中でリノベーションを選択しました。
■「VORT 深沢 residence」の特徴
一棟リノベーションで耐震・省エネ性能向上、共用部・専有部をバリューアップ
本プロジェクトは、安心して永く使えるように耐震改修を実施、第三者機関より新耐震基準の構造評定を取得いたしました。また、外壁に面した壁への断熱追加やサッシ交換(主要箇所はLOW-Eガラスを採用)を実施、設備を更新することで、省エネ性能・断熱性能を高めました。さらに、外観やエントランス、駐輪場等共用部のバリューアップを実施。オートロックや宅配ボックス、屋内駐輪場など基本仕様を確保するとともに、ペットの足洗い場や電動キックボードシェア「LUUP」置場を新設、アーチが印象的なヴィンテージ感のある外観を活かしながら、エントランスアプローチとなる外構デザインを刷新し閑静な高級住宅街にふさわしい設えとしました。
エントランスアプローチ

ビフォー

アフター
エントランスホール

ビフォー

アフター

アフター:オートロックと宅配ボックスを新設

屋内駐輪場・バイク置き場

ペット足洗い場

LUUPを設置予定
立地環境とデザイン
「VORT 深沢 residence」が建つ世田谷区深沢は、駒沢公園徒歩圏の緑豊かな都心の高級住宅街。教育機関やペット関連施設が多く、飲食店やスーパーも充実しているため、人気のあるエリアとして知られています。
マンションは、東急大井町線・等々力駅から徒歩18分、東急田園都市線・桜新町駅から徒歩20分の場所に位置し、周辺には治安が良く閑静な住宅街が広がっています。
住戸にはアクティブな生活をアシストする仕掛け。全戸、中型犬も飼育可能
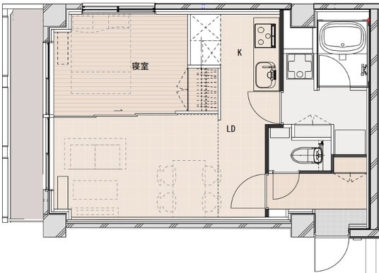
単身世帯からDINKSをターゲットに、ペットとの共生(中型犬・2匹まで)やガーデニングなど、アクティブな生活をアシストする仕掛けを設えました。ペット対応の床材や壁紙を採用するとともに、リビングはビニル床タイルとすることで半屋外のような空間としました。ガーデニングを楽しんだり、リビングの一画をインナーテラスのようにお使いいただけます。間取りは、フルハイトの可働間仕切でワンルームとしても使える1LDKを中心に、最上階は一部スラブを解体し、下階とつなげることでルーフバルコニー付きメゾネット住戸を計画しました。また、暮らしやすさにこだわり、収納計画や家電・家具の配置などを考慮、内装デザインは、ナチュラルで温かみのあるテイストとしました。

住戸イメージパース

Type-A 住戸平面図

Type-A 室内
■物件概要
建物名称:「VORT 深沢 residence」(従前ストークマンション深沢)
所在地:世田谷区深沢5丁目4-10[住居表示]
交通:東急大井町線「等々力」駅徒歩18分東急田園都市線「桜新町」駅徒歩20分東急バス「深沢区民センター」停留所徒歩1分
構造規模:RC造地下1階地上6階
対象敷地面積:302.78平方メートル (91.59坪)
延床面積:1071.19平方メートル (324.03坪)
用途地域:近隣商業地域
許容建蔽率:80%(新築当時60%)
許容容積率:300%
竣工年:1975年(築48年)
リノベーション竣工:2025年3月
耐震基準:新耐震基準の構造評定を取得
戸数:住戸16戸(従前17戸)、店舗1区画
間取り:1LDK 15戸 3LDK 1戸
賃料(共益費込み):146,000円~300,000円
賃貸問合せ:株式会社タイセイ・ハウジー渋谷営業所
〒150-0002 東京都渋谷区渋谷2-22-11 渋谷フランセ奥野ビル3F
TEL:050-3138-3134、FAX:03-5469-8162
◆株式会社ボルテックスについて◆
1999年、宮沢 文彦(代表取締役社長 兼 CEO)により企業財務の新しいソリューションを提供する会社として設立。
「経営に新常識をもたらし富の再分配を実現することにより、社会における格差の拡大とそれによる分断を是正する」を理念に掲げ、東京都心部を中心に大阪や福岡など日本経済を牽引する主要都市の商業地にある中規模ビルをフロアごとに分譲する「区分所有オフィス」を展開しております。この「区分所有オフィス」を活用し、顧客の問題解決として新たな不動産戦略を打ち立て、本業に連動しない収益と流動性の高い売却可能資産を確保し、企業価値・事業継続性の向上に貢献しております。従業員数654名(2024年3月31日時点)、東京本社、札幌、仙台、新潟、金沢、名古屋、大阪、広島、福岡、鹿児島に支店を置く。2024年3月期、売上高819億円、経常利益86億円、保有物件(賃貸用不動産)金額655億円。
・公式サイト一覧:https://lit.link/Vortexinc
◆リノベる株式会社◆
リノベるは、ミッション「日本の暮らしを、世界で一番、かしこく素敵に。」の実現に向け、個人・法人が保有する既存ストックの流通・利活用を推進しながら、サプライヤーであるリノベーション事業者とのマッチングを実現する統合型リノベーションプラットフォームを構築しています。全国500社のパートナー企業と連携し、個人顧客向けに国内No.1の実績(※2)を持つ中古マンション探しとリノベーションのワンストップサービス「リノベる。」や、法人顧客向けにCRE戦略推進と有効活用ソリューションをワンストップで提供する「都市創造事業」を展開。また、サプライヤーには、リノベーションに最適化された経営・運営・DX支援も行っています。3つのプラットフォームの連携により、個人、法人、サプライヤーが抱える課題を価値に変えて成長を加速させ、循環型社会やカーボンニュートラル社会の実現を目指しています。
コーポレートサイトURL:https://renoveru.co.jp/
都市創造事業サービスサイトURL:https://renoveru.co.jp/citycreate/
※1 リノベる株式会社「賃貸レジデンス「コンフォリア高島平」で産学共同研究を実施 リノベーションで建て替えに比べCO2排出量を75%、廃棄物排出量を96%削減。省エネリノベーションによる効果は、40年間のCO2排出量を5%約1,000t削減」(2023/12/7)
https://renoveru.co.jp/news/7543/
※2 リフォーム産業新聞1622号(2024/10/28発行)『マンションリフォーム売上ランキング2024』にて、ワンストップサービスを手掛ける事業者として首位
企業プレスリリース詳細へ
PR TIMESトップへ
